[cheres.buro] Шаблон чертежей для ArchiCAD от 25 версии слив скачать
- Добавлено: 2023-04-09
- Сайт автора: Перейти
- Доступ: Облако Mail / Yandex / Google
- Скачать: PC / Smartphone / Tablet
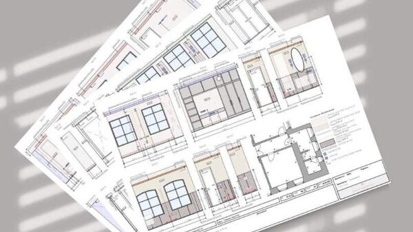
Шаблон чертежей ArciCAD- это инструмент который поможет, вам значительно ускорить процесс создания чертежей.
Этот шаблон содержит готовые элементы, и настройки которые позволят вам создавать чертежи в несколько раз быстрее, чем при использовании стандартных методов.
Этот инструмент так же позволяет упростить процесс редактирования и внесения изменений в чертежи, это поможет вам значительно сократить время, затрачиваемое на корректировки и правки.
Рекомендуемые курсы
СТРУКТУРА ШАБЛОНА ЧЕРТЕЖЕЙ Каким образом я смогу вычертить проект на основе Вашего шаблона? В проекте настроены все слои, модельные виды и графическая замена. Необходимо лишь копировать свойства конструктивных элементов и вычерчивать свои планы. Но! Необходимо тщательно следить за тем, чтобы
• Серьезно задумались о постройке садового домика, гостевого домика, бани или отдельной кухни. Излазили весь интернет в поисках простого, но наглядного проекта, понятного не только специалисту, и в котором содержатся конкретные подробные чертежи деталей и узлов с размерами для их изготовления и
Проектирование домов в программе ArchiCAD по технологиям: каркасная, каменная, фахверк. Обучающая программа: Этап 1. Разработка эскизного проекта Модуль 1.1. Знакомство с интерфейсом и инструментами программы Модуль 1.2. Создание планировки дома Модуль 1.3. Моделирование основных элементов Модуль
Состав продукта: 1 Расчет потери напряжения Программа позволяет рассчитать потерю напряжения в сетях постоянного и переменного тока, без учета индуктивного сопротивления и с учетом индуктивного сопротивления. 2 Расчет реактивной мощности Программа позволяет рассчитать реактивную мощность, которую
Для кого этот курс: — Для Архитекторов — Для Инженеров-строителей — Для Дизайнеров интерьера — Для Конструкторов, машиностроителей, проектировщиков мебели — Для Проектировщиков инженерных систем зданий — Для Геодезистов Что Вы получите после прохождения курса: - Создадите с нуля плоский проект
Мастер-класс в записи для тех, кто хочет понимать, что делает Никто теперь не посмеет насмешливо сказать: «Ты что, реально не догоняешь, как проектируются свайные фундаменты?!» И знаете почему? Потому что есть шанс разобраться в этом деле, и я могу вам в этом помочь. Понятный алгоритм
Больше курсов по этой теме
Видеоинструкция: покрытие обоев эпоксидной смолой Покрытие разных видов обоев эпоксидной смолой. Как правильно покрыть обои эпоксидной смолой. Вы уже посмотрели видео на моем канале про бюджетный ремонт ванной комнаты, где я на стены наклеил самые дешевые обои и сверху покрыл эпоксидной смолой? В
На нашем курсе вы познакомитесь с ассортиментом однолетних и многолетних растений, пригодных для использования в контейнерном озеленении, изучите специфические особенности проектирования и эксплуатирования балконных садов, расширите представление о терапевтическом эффекте малых садов в городских
Что вы узнаете? Как подобрать мебель и материалы в одном стиле. Каким образом обустроить все комнаты в пространстве. Как бюджетно и стильно обустроить квартиру. Методику самостоятельного обустройства дома без дизайнера. Методику подбора аксессуаров для уюта. Краткий, но полезный гайд по подбору
Как за 2 дня организовать удобное и эстетичное хранение на кухне. Новый взгляд Вам знакомо? Не хватает мест хранения, в ящиках и шкафах сложно что-то найти? Столешница постоянно чем-то заставлена, и создает ощущение беспорядка? Выбрасываете просроченные продукты, потому что забываете про них?
170+ страниц пользы и бесценного опыта в электронном виде. Для планирования шкафа в спальню. Нюансы расположения шкафа в комнате, все размеры и расстояния при выборе штанги, полок, ящиков и т.д. Шкафа в прихожую Оптимальные размеры отделений для одежды, обуви, аксессуаров, нюансы выбора различных
Гайд «Планирование взрослых шкафов» 170+ страниц пользы и бесценного опыта в электронном виде. Для планирования шкафа в спальню. Нюансы расположения шкафа в комнате, все размеры и расстояния при выборе штанги, полок, ящиков и т.д. Шкафа в прихожую Оптимальные размеры отделений для одежды, обуви,
Отзывы о курсе [cheres.buro] Шаблон чертежей для ArchiCAD от 25 версии от Альфрид Ленгле